instagram linkedin
Related People
Project

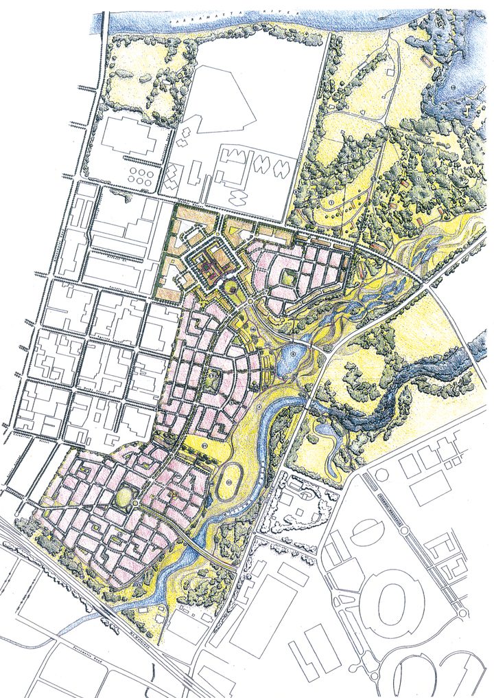
Newington Olympic Village

Homebush Bay, Sydney

COX, as part of a joint venture team with PTW Architects, Mirvac and Lend Lease developed the Newington Olympic Village. This precinct was designed to accommodate athletes during the Olympics, but more importantly to create a long term mixed use precinct as part of the urban renewal of this strategically important area of Sydney.

The plan is structured around a public domain framework of neighbourhoods linked by a spine ridge road linking each of the local parks. New streets connect Newington to adjoining laces with the potential to make additional connections to adjoining areas that are currently industrial but may transition to a broader mix of uses through urban renewal.

The local centre is placed on axis with the Olympic Boulevard, creating a strong visual link to the larger Homebush precinct. The mix of uses includes the local centre, technology park, and 2,000 apartments and houses. The local centre is connected to the adjoining precinct.

There are also public connections to existing developments to the west, to recreation opportunities in the east and through to the conservation areas in the north.

COX prepared built form design guidelines for the precinct to guide the five small architectural practices engaged to develop a diverse range of housing types.

Technical Information

City
Homebush Bay, Sydney
Year
1996
In Association With
PTW Architects and Mirvac Design (then HPA)
Client
Mirvac and Lendlease
Status
Completed, 1995-1996
Key Consultants
AECOM (then EDAW)
Builder
Mirvac, Lendlease
Site Area
900,000m2 (2,000 dwellings, local centre and technology park)